Description de l'offre
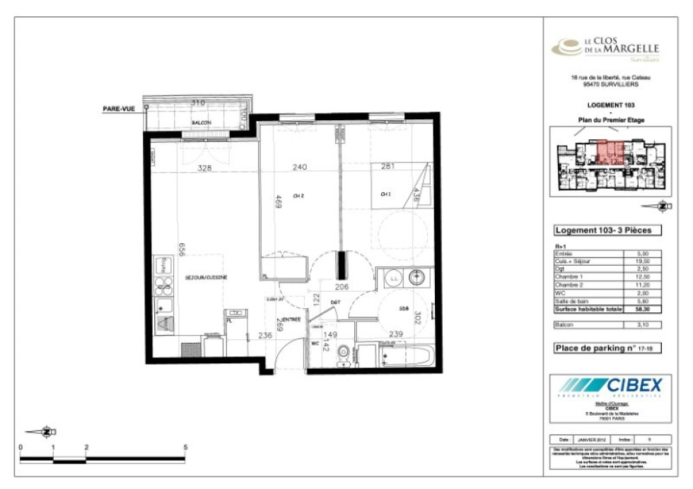
Situé à SURVILLIERS, Dans résidence de 2014, sécurisée, au 1er étage, appartement de type F3 avec balcon comprenant : entrée avec placard, séjour avec coin cuisine aménagé (plaques, meubles), SDB avec WC, 2 chambres. 2 places de parking dans cour fermée. Proche des commerces, des écoles et des transports. "Les informations sur les risques auxquels ce bien est exposé sont sur le site Géorisques : www.georisques.gouv.fr"
